Power Your Future with Clean Energy

Portfolio

Our Projects

Visit Our Latest Solar Projects

Residential Rooftop Solar Permit Design – USA

Residential rooftop solar photovoltaic permit design prepared for AHJ and utility type-approval. This project includes a site-specific layout, a one-line electrical schematic, equipment specifications, and a code-compliant documentation to meet the local construction and electrical requirements in the United States.

Commercial Solar Permit Design & Engineering – USA

Commercial solar photovoltaic permit and set of design drawings for AHJ and utility approvals. It includes the site plan, the layout of the array, the wiring diagram, the structural details, and the equipment specifications for commercial buildings throughout the United States.

Residential Ground-Mounted Solar Permit Design – USA

Design of the solar PV installation including site layout, details of the structure foundations, the electrical single-line diagram and the installation specifications. Prepare to comply with local zoning, building and electrical codes for AHJ and utility approvals in the U.S.

Residential Solar Sales Proposal – USA

Professional solar design proposal including system sizing, layout, manufacturing analysis and a preliminary balance sheet. Used by installers and EPCs to present precise design and prices for their systems to residential and commercial customers throughout the United States.

EV Charger Plan – Residential (USA)

EV charging station permit design including site layout, load calculation, panel scheduling, line routing and electrical single line diagrams. Designed to meet the NEC, public service, and AHJ requirements for residential and commercial EV chargers in the United States.

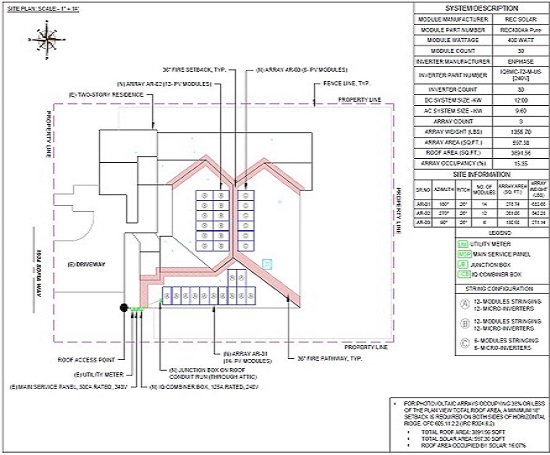
Site Plan & Cover Page

Solar site plan and cover sheet including property boundaries, location of the system, overview of installations, code references and information on the project. Prepared as part of a complete solar drawing set for authorisation for AHJ and utility applications.

Roof Plan & String Details With BOM

Residential rooftop solar PV permit design prepared for AHJ and utility approval. This project includes site-specific layout, electrical single-line diagram, equipment specifications, and code-compliant documentation designed to meet local building and electrical requirements across the United States.

Attachment Details

Residential rooftop solar PV permit design prepared for AHJ and utility approval. This project includes site-specific layout, electrical single-line diagram, equipment specifications, and code-compliant documentation designed to meet local building and electrical requirements across the United States.

Single Line Diagram And Wire Calculation

Residential rooftop solar PV permit design prepared for AHJ and utility approval. This project includes site-specific layout, electrical single-line diagram, equipment specifications, and code-compliant documentation designed to meet local building and electrical requirements across the United States.

Electrical Notes & Specifications

Residential rooftop solar PV permit design prepared for AHJ and utility approval. This project includes site-specific layout, electrical single-line diagram, equipment specifications, and code-compliant documentation designed to meet local building and electrical requirements across the United States.

Placard & Labels

Residential rooftop solar PV permit design prepared for AHJ and utility approval. This project includes site-specific layout, electrical single-line diagram, equipment specifications, and code-compliant documentation designed to meet local building and electrical requirements across the United States.

Equipment Elevation

Residential rooftop solar PV permit design prepared for AHJ and utility approval. This project includes site-specific layout, electrical single-line diagram, equipment specifications, and code-compliant documentation designed to meet local building and electrical requirements across the United States.

Roof Plan & String Details With BOM

Residential rooftop solar PV permit design prepared for AHJ and utility approval. This project includes site-specific layout, electrical single-line diagram, equipment specifications, and code-compliant documentation designed to meet local building and electrical requirements across the United States.

Attachment Details

Details of the structural attachment of residential solar PV systems, showing methods of penetration of the roof, glazing, lag bolts and installation hardware. These specifications are prepared to comply with local building codes and manufacturer’s requirements, ensuring structural integrity and AHV approvals throughout the United States .

Single Line Diagram And Wire Calculation

Comprehensive electrical notes and specification sheet prepared for the approval of residential solar photovoltaic permits. This project includes NEC-compliant installation notes, equipment specifications, conductor requirements, grounding and bonding specifications, marking requirements, and utility interconnection standards to meet the US AHJ and US utility review requirements.

Electrical Notes & Specifications

 
Electrical one-line diagram and wire sizing calculations prepared for approval of the solar photovoltaic permit. This project includes NEC compliant conductor sizing, excess current protection, voltage drop calculations, details of grounding and bonding, and requirements for interconnection to utilities. Designed to meet the local AHJ and utility standards for residential solar installations in th

Placard & Labels

Code-compliant solar photovoltaic placards and label prepared for the approval of residential permits. This project includes safety labels required by NEC and IFC, quick stop placards, inverter and disconnect labels, battery and ESS warning labels, service equipment labels and the identification required by the AHJ and fire codes in the United States.

Equipment Elevation

Equipment elevation drawing prepared as part of the residential solar photovoltaic permit set. This sheet shall show the code-compliant mounting heights, clearance, working space and relative location of the inverters, disconnectors, meters, batteries and servicing equipment according to the NEC, IRC and AHJ requirements for approval and inspection.

Get In Touch

We are always ready to help you and answer your questions

Whether you have a question, a suggestion, or just want to say hello, this is the place to do it. Please fill out the form below with your details and message, and we’ll get back to you as soon as possible.

Monday – Saturday

Get In Touch

    About Us

    At Solaria, we’re committed to delivering reliable, efficient, and sustainable solar energy solutions. From residential installations to commercial systems, we help you harness the power of the sun and reduce your energy bills while protecting the planet.